Телефоны:

+7 495 618-24-90 +7 495 618-15-27

ЗАКАЗАТЬ ПОДРОБНУЮ CМЕТУ
Строим в ипотеку под ключ  Блазново

Строим дома бизнес-класса под ключ
                                  проект "ДВИНА"

Строим под ключ Никол. озера 1

Строим под ключ!!!

                                        проект "БЕРЕНЗАС"

Строим в ИПОТЕКУ Брутал 2

Строим в ИПОТЕКУ от 6%                                                                         
                                        проект "БРУТАЛ 2"

Строим в ипотеку Полесье

Строим в ипотеку  от 6%

                                       проект "Дилайт 2"


Эскизный проект БЕСПЛАТНО

Вы можете предоставить нам Ваш собственный проект, независимо от степени его проработанности и завершенности. Специалисты компании НОВАЯ ИЗБА готовы довести Ваши мечты/рисунки/чертежи до состояния полностью завершенной проектной документации

Индивидуальное проектирование

                                                                                                                                                                         

ИНДИВИДУАЛЬНОЕ ПРОЕКТИРОВАНИЕ

                                            


Б Ы С Т Р О Д Е Т А Л Ь Н О Б Е С П Л А Т Н О расчет

заказать

подробную смету

Отправьте ссылку на проект/эскиз/схему

нам на расчет и получите смету с

детализацией БЕСПЛАТНО

МЭДИНСС-М

Карточка дома МЭДИНСС-М

Площадь дома: 178,8 м2


Стоимость строительства дома
из газобетонных блоков:
7 608 023 рублей
Стоимость строительства
дома из керамоблока
8 216 370 рублей


Что входит в стоимость



Комплектация

  • Фундамент: монолитная плита. Бетон М300. Гидроизоляция отсечная. Закладные под коммуникации (электричество, вода, канализация)
  • Наружные стены: ГАЗОБЕТОННЫЕ блоки 300 мм (D500) или КЕРАМИЧЕСКИЕ блоки 380мм (10,7 НФ теплый)
  • Внутренние несущие стены: ГАЗОБЕТОННЫЕ блоки 375 мм (D500) или КЕРАМИЧЕСКИЕ блоки 380мм
  • Вентканалы: во внутренних несущих стенах сечением 140 х140 мм в соответствии с проектом из рядового кирпича; трубы вентканалов над крышей из облицовочного кирпича
  • Перекрытия: пол 1-го и 2-го этажа - железобетонные перекрытия; Чердачное перекрытие - по деревянным балкам
  • Армопояс, перемычки, входные ступени
  • Стропильная конструкция: брус 200x50 мм, обработан антисептиком
  • Пирог кровли: обрешетка, контробрешетка, паро- и гидроизоляция
  • Покрытие кровли: металлочерепица

Типы конструкции стен, перекрытий и кровли могут быть изменены. Фундамент требует обязательной адаптации под участок застройки

В стоимость также включено

  • Транспортные расходы до 30км от МКАД;
  • Закупка и доставка расходных материалов и инструмента на объект;
  • Эксплуатация строительной техники и оборудования;
  • Расходы на эксплуатацию ручного инструмента и электрооборудования, включая «расходники» (буры, сверла, отрезные диски и т.п.);
  • Расходы на приобретение спецодежды и средств индивидуальной защиты (перчатки, респираторы, очки, защитные маски и т.п.);
  • Расходы на санитарно-бытовые условия (строительные бытовки, биотуалет, душевые);
  • Расходы на временную разводку по строительной площадке электричества;
  • Накладные и организационные расходы
Описание комплектаций строительства

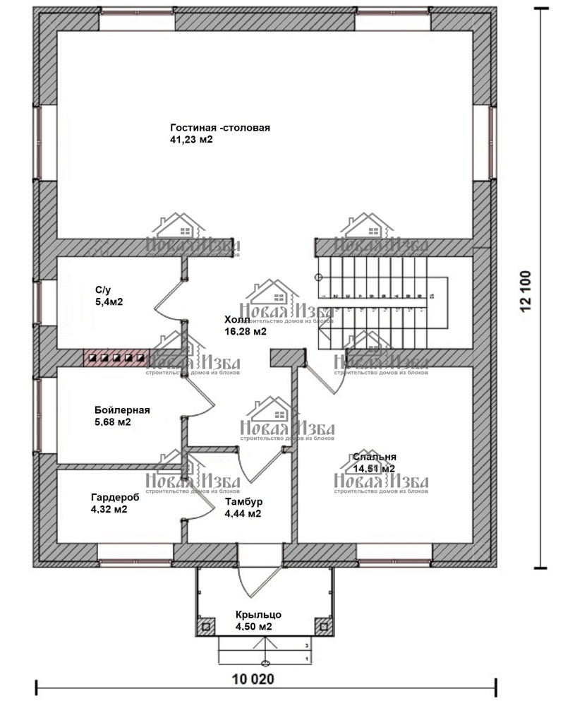
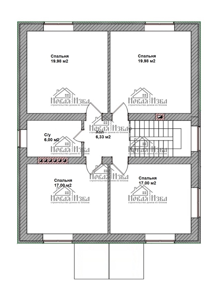
Поэтажные планы дома


План 1 этажа


План 2 этажа


Рассчет стоимости дополнительных работ и изменение параметров



Пожалуйста, оставьте свои контактные данные.
Наш специалист сделает расчет стоимости и свяжется с Вами.

Введите символы с картинки*

* - обязательные поля



Наши объекты на стадии строительства