Строим в ипотеку под ключ
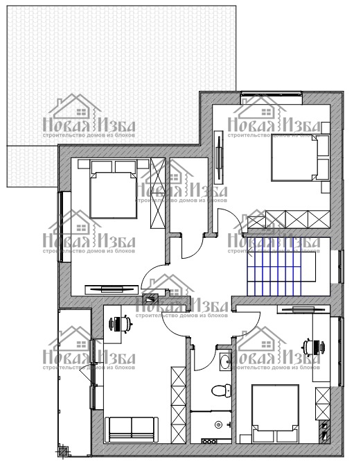
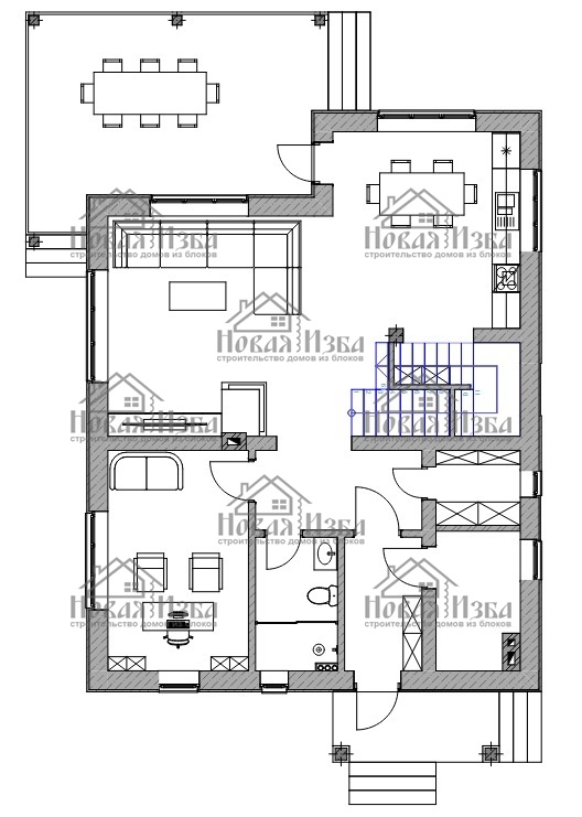
проект "ДИЛАЙТ 2"
Строим под ключ!!!
проект "БЕРЕНЗАС"
Строим в ипотеку от 6%
проект "ДВИНА"
Вы можете предоставить нам Ваш собственный проект, независимо от степени его проработанности и завершенности. Специалисты компании НОВАЯ ИЗБА готовы довести Ваши мечты/рисунки/чертежи до состояния полностью завершенной проектной документации
Строим в ИПОТЕКУ от 6% "НОВАЯ ИЗБА"







